| |||||||||||||||||||||||||||||||||||||||||||||||||||||||||||||||||||||||||||||||||||||||||||||||||||||||||||||||||||||||||||||||||||||||||||||||||||||||||||||||||||||||||||||||
|
||||
物件基本情報 |
| 所在地 | 東京都江東区亀戸7丁目 |
||||
|---|---|---|---|---|---|
| 交通 | JR総武線 「亀戸駅」 徒歩10分 |
||||
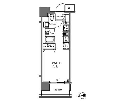
| 種別 / 構造 | マンション / RC造(鉄筋コンクリート造) | 主要採光面 | 西 | 所在階 / 階数 | 4階 / 14階 |
| 築年月 | 2007年11月 | 間取り | ワンルーム( - ) | 専有面積 | 24.97m2 |
物件詳細情報 |
| 損保 | 要 | 更新料 | あり 12.5万円 | 鍵交換代 | - |
|---|---|---|---|---|---|
| 駐車場 | なし | 近隣駐車場 | 契約期間 借家区分 |
2年 - | |
| 現況 | 居住中 | 入居可能日 | 2025年12月25日 | 取引態様 | 媒介 |
| 保証人代行会社 | 仲介手数料 | 13.75万円 | バイク置き場 | ||
| その他費用 |
|
||||
設備詳細情報 |
| キッチン | |
|---|---|
| バス・トイレ |
|
| 住空間 |
|
| 設備・サービス |
|
| 特 徴 | |
| 条件・その他 | ペット:可能 |
| コメント | オートロックマンション!ペット・楽器相談可能!■バス・トイレ別!洗面所独立!室内洗濯機置き場! ■宅配ボックス・敷地内ゴミ置き場あり! ■徒歩3分圏内にリコス亀戸7丁目店・ローソン亀戸七丁目店あります。 |
| 備 考 | - |
学区情報 |
| 小学校区 | 江東区立浅間竪川小学校 (東京都江東区) |
中学校区 | 亀戸中学校 (東京都江東区) |
|---|
| 情報更新日:2025年12月11日 | 次回更新予定日:2025年12月12日 |
こちらの物件の空室状況 |
|||||||||||||||||||||||||||||||||||||||||||||||||||||||||||||||||||||||||||||||||
|
賃貸マンション 12.1万円
亀戸駅 徒歩6分
1K(25.34u)
駅徒歩6分の新築オートロック付きマンション!礼金ゼロ!
賃貸マンション 12.1万円
亀戸駅 徒歩6分
1K(25.30u)
駅徒歩6分の新築オートロック付きマンション!礼金ゼロ!
賃貸マンション 11.5万円
亀戸駅 徒歩6分
ワンルーム(25.79u)
駅徒歩6分の新築オートロック付きマンション!礼金ゼロ!
賃貸マンション 12.2万円
亀戸駅 徒歩6分
1K(25.30u)
駅徒歩6分の新築オートロック付きマンション!礼金ゼロ!
|

2025/11/28
【冬期休業のお知らせ】
2025/12/28(日)〜2025/1/4(日)
12/27(土)年内最終日は13:00までの営業となります。
年明けは1/5(月)10:00より営業いたします。
ご不便お掛け致しますが、何卒よろしくお願いいたします。
2025/8/9
【夏期休業のお知らせ】
2025/8/10(日)〜2025/8/17(日)
8/18(月)10:00より営業いたします。
ご不便お掛け致しますが、何卒よろしくお願いいたします。
2025/4/20
【GW休暇のお知らせ】
休業日:2025/5/2(金)〜2025/5/6(火)
2025/5/8(木)より通常営業いたします。
ご不便お掛け致しますが、何卒宜しくお願い致します。
2025/4/17
【社員研修による休業のお知らせ】
休業日:2025/4/22(火)
2025/4/24より通常営業いたします。
ご不便お掛け致しますが、何卒宜しくお願い致します。
2024/12/9
【冬期休業のお知らせ】
2024/12/28(土)〜2025/1/4(土)
12/27(金)年内最終日は13:00までの営業となります。
年明けは1/5(日)10:00より営業いたします。
ご不便お掛け致しますが、何卒よろしくお願いいたします。
2024/8/5
【夏期休業のお知らせ】
2024/8/10(土)〜2023/8/17(土)
8/18(日)10:00より営業いたします。
ご不便お掛け致しますが、何卒よろしくお願いいたします。
2024/4/5
【GW休暇のお知らせ】
2024/5/1(水)〜2024/5/6(月)
5/7(火)10:00より通常営業いたします。
ご不便お掛け致しますが、何卒よろしくお願いいたします。
2024/2/5
【臨時閉店のお知らせ】
誠に勝手ながら、本日は降雪の為
16:00閉店とさせて頂きます。
明日は通常通り営業致します。
ご不便お掛け致しますが何卒宜しくお願い致します。
2023/12/15
【冬期休業のお知らせ】
2023/12/27(水)〜2024/1/4(木)
年明けは1/5(金)10:00より営業いたします。
ご不便お掛け致しますが、何卒よろしくお願いいたします。
2023/7/14
【夏期休業のお知らせ】
2023/8/8(火)〜2023/8/16(水)
8/17(木)10:00より営業いたします。
ご不便お掛け致しますが、何卒よろしくお願いいたします。
2023/4/14
【GW休暇のお知らせ】
2023/5/2(火)〜2023/5/7(日)
5/8(月)10:00より通常営業いたします。
ご不便お掛け致しますが、何卒よろしくお願いいたします。
2022/12/19
【冬期休業のお知らせ】
2022/12/27(火)〜2023/1/4(水)
年明けは1/5(木)10:00より営業いたします。
ご不便お掛け致しますが、何卒よろしくお願いいたします。
2022/7/24
【夏期休業のお知らせ】
8/9(火)〜8/17(水)
ご不便をお掛けしますが、何卒よろしくお願い致します。
2022/5/29
【来店予約についてのお知らせ】
お部屋探しのご来店は、予約制となっております。
事前に電話もしくはメールにてご予約ください。。
お客様には大変ご迷惑・ご不便お掛け致しますが、何卒ご理解頂きます様
お願い申し上げます。
2022/4/03
GW(ゴールデンウイーク)も休まず営業!
GW(ゴールデンウイーク)も通常通り営業いたします。
ぜひご来店ください!!
2021/10/192021/12/04
【冬期休業のお知らせ】
2021/12/28(火)〜2021/1/5(水)
年明けは1/6(木)10:00より営業いたします。
ご不便お掛け致しますが、何卒よろしくお願いいたします。
2021/10/19
【営業時間についてのお知らせ】
10/21(木)より通常営業を再開いたします。
営業時間 10:00〜18:00
2021/7/12
【夏季休業のお知らせ】
8/10(火)〜8/18(水)
ご不便をお掛けしますが、何卒よろしくお願い致します。
2021/05/14
【営業時間についてのお知らせ】
新型コロナウイルス感染拡大防止等を受け、お客様と従業員の健康と安全確保の為
引き続き以下の通り、営業時間を変更させて頂きます。
営業時間 10:00〜17:00
ご来店の際には、検温・消毒のご協力をお願いいたします。
お客様には大変ご迷惑・ご不便お掛け致しますが、何卒ご理解頂きます様
お願い申し上げます。
2021/01/30
【ご来店時の検温・消毒について】
新型コロナウイルス感染拡大防止等を受け、お客様と従業員の健康と安全確保の為
ご来店の際には検温・消毒にご協力お願い致します。
2020/12/06
【冬期休業のお知らせ】
2020/12/28(月)〜2021/1/4(月)
年明けは1/5(火)10:00より営業いたします。
ご不便お掛け致しますが、何卒よろしくお願いいたします。
2020/11/21
【営業時間についてのお知らせ】
新型コロナウイルス感染拡大防止等を受け、お客様と従業員の健康と安全確保の為
引き続き以下の通り、営業時間を変更させて頂きます。
営業時間 10:00〜17:00
お客様には大変ご迷惑・ご不便お掛け致しますが、何卒ご理解頂きます様
お願い申し上げます。
2020/8/8
【夏季休業のお知らせ】
8/11(火)〜8/19(水)
ご不便をお掛けしますが、何卒よろしくお願い致します。
2020/04/04
【営業時間変更のお知らせ】
新型コロナウイルス感染拡大防止等を受け、お客様と従業員の健康と安全確保の為
以下の通り、営業時間を変更させて頂きます。
□10:00〜17:00
お客様には大変ご迷惑・ご不便お掛け致しますが、何卒ご理解頂きます様
お願い申し上げます。
2020/03/28
【営業時間変更のお知らせ】
誠に勝手ではございますが、
新型コロナウイルスによる外出自粛要請に伴いまして、
3/28(土)、3/29(日)の2日間
営業時間を 10:00〜16:00 とさせていただきます。
ご不便・ご迷惑をお掛け致しますが、何卒よろしくお願い申し上げます。
併せまして、皆様方のご自愛のほどお祈り申し上げます。
2019/12/07
【冬期休業のお知らせ】
12/28(土)〜年明け1/5(日)
年明けは1/6(月)10時より営業いたします。
ご不便おかけいたしますが、何とぞよろしくお願いいたします
2019/10/11
※【臨時休業のお知らせ】※
明日10/12(土)は、台風の接近が見込まれるため
臨時休業とさせていただきます。
ご不便・ご迷惑をお掛け致しますが、何卒よろしくお願い致します。
2019/7/30
【夏季休業のお知らせ】
8/10(土)〜8/17(土)
ご不便をお掛けしますが、何卒よろしくお願い致します。
2019/5/2
弊社では本日からクールビズとなります
令和も元気に営業します
是非ご来店ください
2018/12/26
本年最終営業日です!
新年は1月8日(火)10時より営業いたします!
是非ご来店くださいませ
2018/10/8
駐車場オーナー様募集中です!!
詳しくはこちらまで
2018/9/30
本日は、台風による荒天のため18:00までの営業とさせて頂きます。
皆様もどうかお気をつけて!
2018/09/23
本日は不動産の日!!
9月は不動産取引が活発になる時期であることと、「ふ(2)どう(10)さん(3)」(不動産)と読む語呂が由来だそうです。
2018/08/09
【夏季休業のおしらせ】
8/10(金)〜8/16(土)
ご不便をお掛け致しますが何卒宜しくお願い致します。
2018/7/28
お詫びのお知らせ
弊社が広告掲載しているSUUMO売買のイトーピア東大島マンション掲載情報に誤りがございました。
ただ今是正中です。申し訳ございません。
2018/06/21
誠に勝手ながら平成30年6月21日より
営業時間を下記に変更させて頂きます。
開店 10:00
閉店 18:30
皆様にはご不便をおかけしますが
何卒よろしくお願い致します。
2018/03/16
いよいよ明日はリバーフェスタ江東2018!
2018/03/1
新着物件も続々出ています
是非ご来店ください!
2018/02/19
【街情報】
3月17・18日はリバーフェスタ江東2018が開催されます!
2018/02/03
【街情報】
本日18時より東大島神社で節分祭開催!
2018/01/22
駐車場をお探しの方へ!
新春運だめしキャンペーン実施中です
是非ご来店ください
2018/01/05
新年、本日より営業しております
今年も何卒宜しくお願い致します!
2017/12/26
本年最終営業日です!ありがとうございました
新年は1月5日(金)10時より営業いたします!
是非ご来店くださいませ
2017/12/16
冬季休業のお知らせ
12月28日(木)〜1月4日(木)
ご不便をお掛け致しますが、何卒宜しくお願い致します。
2017/12/05
12月に入り、新着物件も出ています!
是非ご来店ください
2017/11/11
オープンルーム開催中!
洋伸東大島マンション112
11日(土)12日(日)11:00〜17:00
是非お気軽にお越しください
2017/10/23
東砂駐車場賃料改定しました!
1万円台になりました!
耕田タワー駐車場ご紹介です
2017/10/05
新着駐車場情報あります!
なかなか出ない駐車場情報もありますので、是非ご確認ください
2017/09/09
第34回江東区民まつり大島地区大会
開催中!ビッグパレードは10日10:00〜
2017/08/27
本日は中の橋商店街でサンバパレード!!18:30〜
2017/08/26
中の橋商店街の夏祭り開催してます!
27日(日)まで、是非ご来場ください!
2017/08/19
この時期も新着物件あります!是非お気軽にお声掛けください
2017/08/17
本日は10時から19時まで通常営業しております
あいにくの雨模様です、足元にお気をつけてご来店ください
【夏季休業のおしらせ】
8/8(火)〜8/16(水)
ご不便をお掛け致しますが何卒宜しくお願い致します。
2017/08/01
本日は江東花火大会!東大島からも見えます

2017/07/20
関東もいよいよ梅雨明けしましたね
暑さも本番です!そしてこの時期も新着物件有ります!
是非お問い合わせください!
2017/07/07
今年の七夕、都内はなんとか雨が降らないかも…?
気温は暑くなっていますので、気をつけてお越しください
2017/06/15
この時期の新着物件は意外とねらい目かも!
お問い合わせはHPからが便利です
2017/05/20
今年も東大島そらまめ祭り開催してます!
20日(土)、21日(日)の2日間、是非ご来場ください
2017/05/15
創業30周年を迎えました!
今後とも、どうぞ宜しくお願い致します!
2017/05/11
誠に勝手ながら5月13日(土)社内行事のため閉店となります。
14日(日)は通常通り営業いたします。
2017/05/09
新緑の鮮やかな季節になってきました!
爽やかな時期のお部屋探し、是非ご来店ください
2017/04/27
ゴールデンウィーク中は5月3日(水)を除き、営業してます
是非ご来店ください
2017/3/30
売買物件情報に新着物件があります
もうすぐ完成
亀戸7丁目新築戸建て
2017/03/07
3月19・20日リバーフェスタ2017が開催されます!
詳細はブログにて。。
2017/02/21
【地域情報】
ライフ東砂店がオープンしました!
2017/02/19
本日の東大島、風は冷たいですが快晴です!お部屋探しは当店へお越しください
2017/02/03
今日は節分!東大島神社でも豆まきが開催されます
2017/01/06
ピタッと新生活応援キャンペーン実施中!
お部屋探しは当店へ
2017/01/05
あけましておめでとうございます
本日より営業いたします!是非ご来店ください
2016/12/26
本年も大変お世話になりました!
来年もまた、宜しくお願い致します
2016/12/25
当社冬季休業のお知らせ
12月27日(火)〜1月4日(水)
ご不便をお掛け致しますが、何卒宜しくお願い致します。
2016/11/27
11月最後の日曜日です!今年も残りわずかですが当店元気に営業中です!
是非ご来店ください
2016/11/21
誠に恐れ入りますが23日(水)祝日は定休日となります。
2016/11/07
店頭に早くもクリスマスデコレーションが登場しました
2016/10/22
爽やかな秋の日です
住まいのご相談に是非ご来店ください
2016/10/04
店頭がハロウィン仕様に変身中!
かぼちゃ頭がお出迎えします
2016/09/04
駐車場20,000円キャンペーン実施中です!
詳細は当社スタッフまで問い合わせください
2016/08/18
本日より通常営業です!
夏休み明けのお部屋探しに是非ご来店ください
2016/07/24
当社夏期休業日のお知らせ
8/9(火)〜8/17(水)
ご不便をお掛け致しますが何卒宜しくお願い致します。
2016/7/21
関東の梅雨明けはもう少しでしょうか・・・?
雨にも負けず営業中です!
2016/07/01
今日から7月!今年も早いもので半年が過ぎましたね
冷たいお茶のご用意もありますので、是非ご来店ください
2016/06/12
梅雨入りしましたが、暑い日の屋外は真夏のようです
晴れ雨対策どちらも必要ですね

2016/06/03
爽やかな気候で過ごしやすい日が続きますね
東大島も緑がいっぱいになってきました!是非ご来店ください
2016/05/29
5月最後の日曜日!お部屋探しにピッタリの気候です
是非ご来店ください
2016/05/28
すっかり運動会・遠足日和ですね☆東大島でもたくさん開催されている模様です
2016/05/20
ご来店のお客様には引き続きノベルティプレゼントしております
是非ご来店ください!
2016/05/17
誠に勝手ながら本日の営業は18時30分までとさせていただきます。
何卒ご了承くださいませ。
2016/05/14
東大島でそらまめ祭り開催中です!
盛り上がってます
2016/05/13
明日から2日間そらまめ祭り開催!
詳細はブログで
2016/05/12
日中は暑いですが夕方は冷えてくるこの時期、体調にご注意を
体温調整が出来る服装でご来店ください
2016/05/05
三連休最後のこどもの日!
東大島はいいお天気です
2016/04/28
当店はGW中も営業しています
(水曜のみ定休)
是非ご来店ください!
2016/04/22
大島のお隣、亀戸では藤まつりが開催されています!
当社の取材ブログも是非ご覧ください
2016/04/19
熊本を中心とする九州地方で被災された方々に、心よりお見舞い申し上げます。
一日も早く心休まる日が来るよう、お祈り申し上げます。
2016/04/09
お花見もいよいよ終盤の週末です
お部屋探しにはぴったりの季節になりました!
是非ご来店ください
2016/03/24
都内も桜開花宣言しましたね!
東大島駅近くの小松川千本桜まつりももうすぐ
当社にも是非ご来店ください!
2016/02/28
リバーフェスタ江東2016情報です!
ブログご参照ください
2016/02/05
ピタットハウス春の新生活応援キャンペーン中!
ご来店いただいた方にチャンスあり!
是非お越し下さい
2016/01/16
新着物件も出てきている今がチャンス!
お部屋探しに是非ご来店ください
2016/01/07
新年明けましておめでとうございます!
本年も皆様の暮らしのお手伝いができるようにスタッフ一同頑張ります!
是非ご来店くださいませ
2015/12/28
本年もたくさんの方にご来店いただきましてありがとうございました!
年明けは1月7日(木)より元気に営業いたします
休業中にあらかじめお問い合わせいただければ7日以降すぐにご対応致しますので何卒宜しくお願いします!
2015/12/21
当社冬季休業のお知らせ
12月29日(火)〜1月6日(水)
ご不便をお掛け致しますが、何卒宜しくお願い致します。
2015/12/06
当店が≪ピタットハウス店づくりコンテスト≫ 入賞しました
入賞店舗をご覧に是非ご来店ください!
2015/12/04
いよいよ2015年もあとわずか!
寒くなってきましたので暖かくしてご来店ください
お待ちしております!
2015/11/22
今日は『いい夫婦の日』でもありますが『大工の日』でもあります!
いい家を建ててくれる大工さんに感謝し、いい家を探しましょう
ご来店お待ちしています
2015/11/21
秋晴れの空!になるにはちょっと雲がありますが、いいお天気になりましたね
お部屋探しに是非ご来店ください
2015/11/19
すっきりしない天気が続いていますが、お引越には動きやすい時期です
土曜日は晴れるかも
是非ご来店ください!
2015/10/26
『賃料相場を知る!』というトピックがトップページに掲載されました!
お部屋探しの参考にどうぞ
2015/10/25
中の橋商店街ハロウィンイベントレポUPしました!
2015/10/11
『街ピタ』新情報アップしてます
東大島の情報、是非チェックしてみてください!
2015/09/20
暑い時期も過ぎ、街はハロウィンで賑わいますね
当社も飾りつけする予定です!
是非ご来店ください
2015/08/30
8月もいよいよラスト!
涼しくなってお部屋探しも快適に出来ますね
是非ご来店ください!
2015/08/06
当社夏期休業日のお知らせ
8/11(火)〜8/19(水)
ご不便をお掛け致しますが何卒宜しくお願い致します。
2015/07/21
夏休みはお子様と一緒に公園で遊んでみてはいかがでしょうか
公園に近い物件ご紹介中!
当社の目の前にも公園がありますので是非遊びに来てください
2015/07/18
雨の日も安心な駐車場、空きあります!
是非お問い合わせください
2015/07/12
本日はお洗濯日和
梅雨明けのような暑さに負けず営業中です
是非ご来店ください
2015/06/28
梅雨時期のお部屋探しは是非、当ホームページで
スマホ対応サイトです
2015/05/24
梅雨時期前の気持ちいい季節ですね
お部屋探しに是非ご来店ください!
2015/05/09
9日(土)10日(日)は旧中川・川の駅でそらまめ祭り開催します!
2015/05/03
GWも半ばですが、当社は元気に営業中です
お部屋に関してのご相談にはいい時期かも
ご来店お待ちしてます
2015/04/01
4月になりました!
この時期からの新着物件もまだまだあります
是非ご来店ください
2015/03/14
リバーフェスタ江東参加しました!
2015/03/06
トップページにオススメ駐車場表示されるようになりました
イベント情報ブログにて!
『リバーフェスタ江東』
2015/02/12
日刊ベイネット
放映されました!
2015/01/26
【2月放送予定】日刊ベイネット!
当社物件がケーブルテレビの番組で紹介されます
詳細決まり次第ブログアップしていきます!
